June 18, 2014
Installation of metal panels, roof, insulation and underground plumbing have been completed. Forms for the concrete walkway surrounding the ice sheet are under construction. Contractor anticipates the concrete trench will be poured on June 18. Masonry work begins June 18.
Installation of ice plant equipment to begin the week of July 7.
Metal paneling completed on the South side (front of the building). Left picture shows entrance and the right picture shows building length.

June 11, 2014
Making progress with the exterior framing.


May 30, 2014
The roof perlins will be installed today and exterior framing will start on Monday, June 2.
May 28, 2014
Do you wish you had been able to go to the site yesterday to see the building go up? Here is the next best thing, you can watch the time lapse video of the construction. Many thanks to Matt Culbertson for this.
Video of building steel being raised into place.
May 27, 2014
Hurray!!! The crane is on site today and the building is starting to take shape!


May 23, 2014
Rain rain go away!! The metal beams for the roof have been assembled and are positioned on site to be installed/connected to the side beams. However, due to the daily rains, the soil has been to saturated to carry the weight of the crane that will lift the roof beams up to be attached to the side beams. Based on the forecast for this week, it would appear that an attempt at raising the roof beams will occur on Wednesday, May 28. In the meantime, CalCon continues with construction activities that can be completed while we wait for the weather to cooperate. Go to the DCC Facebook page for additional construction photos!
May 6, 2014
Up and close steel girders which will be assembled this week. Next Wednesday the beams will be erected and anchored to the foundation. Backfill dirt has been added around the insulated foundations. Darin and Brad stand on the kitchen wall. Construction progress!!


April 28, 2014
Calcon is in the middle of the concrete pours. There will be two pours for the footings and the long concrete berms tying pairs of footings together across/beneath the eventual ice floor. Then there will be two pours covering the sides of the buildings for the beams on which the masonry walls will sit.
On May 5th four trucks will arrive with the steel building components. The entire steel frame and metal siding is to be completed in 14 days, less than a month from now!
April 13, 2014
The earth moving has been completed without any problems with soil excavation, treatment, replacement, or compaction. Last week the connection of the fire line was completed and Consolidated Mutual Water Company was trenching and installing the 8" water main. The water main connects to the line in 7th Avenue, proceeds southward down the entry drive and then turns east through the future parking lot, ending at the future museum site. Additional utility and site work will continue into early May.
The concrete spread footings will also soon be poured as the next step before the metal building components begin to arrive. The delivery of the steel building frame is scheduled to begin after the first week in May.
During the past several weeks, we have had a conference call with the contractor, the architect, the ice system rep, and with the head USCA ice maker, Dave Staveteig. This call helped to resolve questions pertaining to the transition from the ice floor to the surrounding walkway and building foundation to be built by Calcon.
We are continuing discussions and investigation into the question to demineralizing the water to be used in ice making. We are currently comparing deionized and reverse osmosis systems, including the amount of floor space needed for either equipment. We are continuing to obtain details on storage of the treated water, flow rates, and that effect on flooding. There is still more to learn before we can make a recommendation as to the best system, but we are close.
March 30, 2014
The excavation, soil preparation, and soil replacement have been completed. The next part of the process will be excavating for various utilities and laying out the placement of the building foundation. About the middle of May the building frame should begin.
March 13, 2014 - Picture of bottom 20 feet below the surface! Add water, insert and compact in the hole to assure stable ground for the ice sheet.
March 11, 2014: Contractor reaches bottom of sub-excavation (19 feet below the surface). Snowy wet weather did not hinder the efforts. The moisture was a welcome sight. Water equal to 33% will be added to the soil as the soil is re-inserted in the construction hole. Soil testing will be completed today to confirm that the types of soil found 19 feet below the surface are the same soil conditions as disclosed in the initial soils report.

March 6, 2014 - The sub-excavation continues this week. The excavating of soils beneath the future building is currently approximately 14 feet below the surface. Another 5 feet to go before the soil can be treated and put back and compacted.
The mound of soil removed from below the building site as of 3-6-14.

February 27, 2014 - The land was donated from Scott Stevinson and fee title to the land was conveyed to the DCC by the deed recorded today in the Jefferson County records. DCC is now the proud owner of Lot 2, Curling Club Subdivision in Jefferson County, Colorado!!
Earth-movers continue to grade the site. The houses adjacent to the site have been demolished.


February 26, 2014 - Contractor has begun to scrape the topsoil.

Week February 17, 2014 –
The construction fence around the perimeter has been installed.
The port-a- potties have been set up – prime indicator of construction on site.
Generator for utilities installed and running to operate CalCon’s construction trailer!
Surveyor has staked (pinned) the (a) corners of the building – we can now visualize the perimeter of the building as it will sit on the land, and (b) the exterior lot line.
Century Link has removed its line.
Comcast has disconnected its line.
Earthmoving equipment - Tonka Toys arrive!
February 25, 2014 –
Jefferson County authorized site and grading work to commence. The building permit for the vertical construction will be issued upon completion of the site work and delivery of a soil compaction report. We anticipate completion of the site work within the next 4-5 weeks.
The Building Committee and CalCon Constructors held the first construction meeting. The contractor, architect and applicable subcontractors will be meeting every 2 weeks from now until completion of the project.
Sweat Equity will be needed!
We will be forming sweat equity committees for various construction and landscaping projects to be completed prior to issuance of the Certificate of Occupancy. Areas to be completed by volunteers:
- Construction walkway around ice perimeter
- Landscaping – planting of bushes; rock movers
- Frame and drywall locker rooms
- Frame and drywall kitchen
- Paint locker rooms, viewing room & kitchen
If anyone has expertise or experience in any one of the foregoing areas and would be willing to lead the crew, please email anyone of the Building Committee members:
Pam Finch – This email address is being protected from spambots. You need JavaScript enabled to view it.
Scott Stevinson – This email address is being protected from spambots. You need JavaScript enabled to view it.
Darin Romine – This email address is being protected from spambots. You need JavaScript enabled to view it.
February 12, 2014 –
The perimeter fence has been removed by Golden Eagle Services and will be recycled.
February 13, 2014 – CalCon Constructors’ construction trailer has been moved to the site and is being prepared to be construction headquarters for the project.
February 14, 2014 – New curling stones have been shipped from Scotland and arrived at the New York Harbor – waiting for the snow to clear before shipping on to USA Curling’s headquarters in Steven’s Point, Wisconsin.
Requirements for issuance of the building permits have been satisfied.
Budget Adjustments (Savings):
The DCC was successful in its request to Jefferson County to reduce the traffic impact fee which saves the DCC $38,038. Thank you Scott Stevinson for your convincing arguments and discussion with Jefferson County.
The DCC was successful in obtaining Builder’s Risk Insurance as a result of being a member of the Colorado Nonprofit Association resulting in $6,500.
Building Update February 7, 2014: Building Committee met with the architect to review minor changes to be made to the final construction plans. Letters of Credit for posting with the County are in process with the bank.
Building Update February 4, 2014. DCC entered into the construction contract with CalCon Constructors, Inc. with a completion date of 212 days from the date we receive "Notice To Proceed" - issuance of the building permit. We are finalizing the last of the requirements for recording the approved Site Development Plan. Building Plans are in the process of being reviewed by the County. The telephone pole has been removed from the property.
Building Update January 31, 2014. Building Committee will be meeting with the Contractor at the site on Tuesday to go over the pinning of the property for the various improvements.
Building Update January 28, 2014. The Easement Agreement with Consolidated Mutual Water Company for the water main was recorded today. Conference call with the Contractor, Architect and Building Committee was held to discuss the construction logistics. The Contractor advised that the State Storm Water Permit has been issued. Subcontractors have been notified the construction will commence upon issuance of the building permit. In the meantime, the Contractor will be working with Golden Eagle Services to remove the existing fence and will be installing the construction fencing. The Contractor has authorized the surveyor to complete the site layout by pinning the various construction points for the building, right-of-way, utility pedestal, etc.
Building Update January 27, 2014. The plat for the Curling Club Subdivision was recorded on Friday, January 24, 2014. The Site Development Plan ("SDP") has been approved. The SDP Mylar has been signed and letters of credit to secure the public improvements, utilities and landscaping will be delivered to the County this week. Building plans have been submitted to the County for review. Upon approval, the various building permits will be issued. A conference call with architect, engineers, contractor and building committee is scheduled for tomorrow to start the beginning of the construction process.
The recording of the plat permits us to transfer Lot 2 to the DCC, following the recording of an easement to Consolidated Water for the construction and maintenance of the main waterline. We anticipate the easement being recording this week.
The DCC will be entering into the construction contract with the contractor, which will provide us with the anticipated "completion date".
40 lockers were obtained from a demolition project and donated to the DCC along with over 300 feet of rubber flooring material/matt for along the ice sheet walkway and 4 benches for the locker rooms! Go to the DCC Facebook pages for pictures. In storage, we now have tile for the restrooms, and several metal door frames. Thank you Alyssa Schear for obtaining the lockers, flooring and benches.
Building Update January 1, 2014. We delivered what we thought was all documentation required to record the plat, however, an 11th hour issue arose, one which we had received confirmation had been resolved back in August, however, our County Planner neglected to get final sign off by the County Assessor and resulted in a delay in recording the plat. We are working diligently to rectify the issue dealing with the adjacent 7th Avenue right-of-way! Stay tuned!
Building Update December 28, 2013. The plat mylar along with the required easement agreements were hand deliverd to Jefferson County on Friday, December 27, 2013. The County will be signing the plat and will record the plat ahd easements in the Jefferson County records this week. We have been working diligently with the County, the DCC's architects and engineers, to get us to this huge milestone. Once the Plat is recorded, Lot 2 will be transferred to the DCC..
We received additional comments from the County on the site development plan - not sure why these comments weren't included in the previous comment reports, but it is the County, and we have to jump through their hoops. As stated previously, the architect and engineers are finalizing the building plan drawings required to pull the building permit.
We met with the Pleasant View Water & Santiation District yesterday to finalize the easement required for the plat and discussed construction of the water meter to be installed in January.
Monday, December 23, we met with the Contractor to go over possible line item saving costs and budget related items.
Building Update November 26, 2013: Jefferson County Board of Commissioners approved the Preliminary and Final Plat of the Curling Club Subdivision. Upon final submittal of plat requirements, the plat will be recorded and the land will be conveyed to the Denver Curling Club. Building plans are in the process of being finalized for submittal to the Jefferson County Building Department for issuance of the building permit. We will need to focus our attention on finalizing fund raising to meet the final construction budget. If you are skilled in marketing or sales and would like to assist in the fund raising efforts, please contact Pam Finch (This email address is being protected from spambots. You need JavaScript enabled to view it.) or Darin Romine (This email address is being protected from spambots. You need JavaScript enabled to view it.).
Building Update November 5, 2013: Hearing for the approval of the Curling Club Subdivision Plat before the Jefferson County Planning Commission is scheduled for November 13, 2013 at 6:00PM and hearing before the Board of County Commissioners is scheduled for November 26, 2013 at 8:00AM. The hearings will be in Hearing Room One, Jefferson County Administration and Courts Facility, 100 Jefferson County Parkway, Golden, CO 80419. Building Update - Oct 29, 2013 - Official Ground Breaking held Building Update October 10, 2013: The Official Development Plan has been approved by the County. The resubmittal of the Site Development Plan was submitted. Final revisions are being made to the Plat and will be submitted early the week of October 14, 2013. Building Update October 1, 2013: DCC has been awarded a grant from the Darwin Curtis Fund Grant Program of $2,300.00 for the purchase of new curling equipment to be used in recruitment events, or up to 50% of the project if the total amount invested by the DCC does not equal or exceed $4,600.00. Equipment to be purchased - brooms, sliders, stabilizers, delivery sticks, grippers and head gear! New equipment will certainly assist us in our recruiting efforts from the Learn to Curl Events!!
The Darwin Curtis Fund was established to “support and encourage participation by the general public in the sport of curling, as, for example, to provide or maintain public curling facilities and to provide equipment, instruction and supervision, either alone or in conjunction with others such as public park or recreation districts.”
Building Update September 17, 2013: Doors and frames for the building have been donated and delivered to DCC’s storage unit!
Building Update September 6, 2013:
NEW STONES! The DCC has entered into a Contract to Purchase 64 new curling stones from USA Curling under the Stone Purchase Program. Stones and new handles will be shipped from Scotland and are expected to arrive at the Curling Center in February 2014.
“Adopt a Rock” and have your name or your company’s name on the stone handle:
64 Stones - $16,000 for a 1 year term; or
16 Stones - $4,000 for a 1 year term; or
8 Stones - $2,000 for a 1 year term; or
Two Stones - $500 for a 1 year term.
Contact Darin Romine to Adopt a Rock: This email address is being protected from spambots. You need JavaScript enabled to view it.
Building Update as of August 27
The Jefferson County Board of County Commissioners unanimously approved the rezoning of the proposed property for the construction of the Curling Center after Heather Gutherless, Case Manager, presented the proposal to the Commissioners at the public hearing and Scott Stevinson and architect, Bruce McLennan, answered questions from the Commissioners. There were no objections voiced from any of the citizens in the immediate neighborhood of the Curling Center property. The Building Committee will be meeting with SEM Architects the week of September 3 to finalize the building plans to be submitted for review and approval by the Jefferson County Building Department. The process for approval of the Plat for the Curling Center Subdivision is process.
Building Update as of August 13
August 7, 2013 - Planning Commission voted to unanimously recommend the rezoning of the Curling Center and Museum property. The Planning Commission's recommendation will be presented at a public hearing before the Jefferson County Board of County Commissioners a 8:00 AM on August 27.
Building Update as of August 4
The public hearing before the Jefferson County Planning Commission takes place 6:15 PM, August 7th. We received the staff report that will go to the Planning Commission itself; the staff is recommending approval. Whatever recommendation the Planning Commission makes will be passed onto the Board of Commissioners and that board will hold its public hearing beginning on the morning of August 27. It would be helpful if some DCC members are on hand at both hearings to show support for the project, particularly residents of Jefferson County, or members working in the county.The Planning Commission Hearing will be held at 6:15PM on Wednesday, August 7, 2013 in Hearing Room One, Jefferson County Administration and Courts Facility, 100 Jefferson County Parkway, Golden, CO 80419. The hearing before the Board of County Commissioners will be held on Tuesday, August 27, 2013 at 8:00AM in the same location as the PC hearing.
Building Update as of July 16 - Public Hearings Planned
The revised Official Development Plan, the Site Development Plan and Plat for the Denver Curling Club Subdivision were filed with the Jefferson County Planning Department on Monday, July 15. The rezoning public hearing before the Jefferson County Planning Commission is scheduled for August 7th and the public hearing before the Jefferson County Board of Commissioners is scheduled for 8:00AM on August 27, 2013. After completion of the hearings and assuming all is approved, the rezoning process will be completed.Floor and wall tiles for the bathrooms have been donated by Guy’s Floor Service, Inc. and are safely ensconced in the DCC storage unit awaiting other donated items.
Buiilding Update as of July 6, 2013
Preliminary Landscape architectural drawings by Valerian LLC (Brent Kaslon) have been delivered to SEM Architects to incorporate in the Site Development Plan. Arcitect and civill engineers continue preparing the Site Development Plan which is tenatitvely scheduled to be delivered to the County Planning Department on July 12.
Buiilding Update as of June 24, 2013
We received comments from the Planning Department on our revised Official Development Plans. Changes are minor and clarical in nature and will be revised and sent back to the Planning Department early this week. The Planning Department to set the hearing date for the Planning Cmmission sometime in mid-July. In the meantime, the architect and engineers are continuing to work on finalizing the Site Development Plan. Board Members are now concentrating their efforts on contacting members that have pledged loans and finalizing the loan documents. Also following up with members that have pledged donations
.Buiilding Update as of June 3, 2013
The architect has made the required changes to the Official Development Plan and has submitted the revisions to the Planning Department. The Committee will be meeting with the architect and contractor to finalize the exterior elevation plans and tweaking the floor plan. The civil engineer is finalizing the site plan and plat. We are still on target for groundbreaking this summer
.Buiilding Update as of May 11, 2013
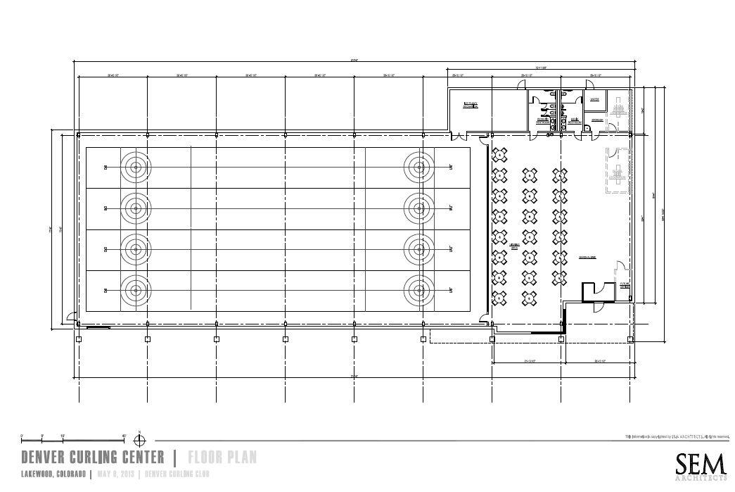
The architect has provided us with a revised floor plan based on last week's meeting. The ice plant and storage rooms have been moved to the northeast corner of the facility. Feel free to provide comments on the floor plan by using the Contact tab on the website.
Buiilding Update as of May 4, 2013
Committee members met with the architect, contractor and steel provider on Thursday to discuss reconfiguration of the floor plan. We expect to receive a revised floor plan this week based on our discussions. The major change to the floor plan involves relocating the ice plant and storage rooms along the north side - east end of the building. This move will maximize the use of the square footage of the building and cause more efficient operating procedures.
Building Update as of April 28, 2013
Committee members met with member, Steve Miller, to discuss updating and enhancing DCC's marketing materials for the building campaign. We await the results of the soils report to finalize the cost of the site work and comments from the zoning and planning department on documents submitted. Committee members had discussions with various DCC members this past weekend at the Broadmoor Bonspiel to brainstorm on fund raising ideas and the annual member's meeting/picnic.
Building Update as of April 21, 2013
Members of the Building Commitee met with SEM Archiects, building architect, and Brent Kaslon with Valarian LLC ('Valerian"), landscape architect, to discuss landscaping. Brent and Valarian have agreed to donate their services for the landscaping architect plans and will coordinate the plans with SEM's building plans.Building
Update as of April 13, 2013
Re-zoning application has been submitted. After review of the documents required for re-zoning, the Jefferson County Planning Department will set a date for a public hearing/meeting. Notices will be mailed to the surrounding neighbors as required by law. When the meeting date is set, we will notify the members with the information. Additional items have been donated. See Wish List under "Building Update" under Member / , Member Resources,
Conceptual elevations:
Building Update as of April 9, 2013Goal: Our goal is to build a dedicated curling facility in Metro Denver to open early 2014 in order to continue to support and develop the Olympic sport of curling and the capabilities of amateur athletes to participate in competitions. Our goals to further promote the sport include active participation in developing after school programs for children, teenagers, and young adults, developing programs for wheelchair curlers, hosting Learn-to-Curl events, bonspiels that will attract curlers across the nation, staying active within social networking marketing
With these goals the Denver Curling Club upholds its mission to teaching, developing, promoting, and to encouraging the sport and spirit of curling; and to developing youth and adult programs that lead to local, national, and international competitions. Donate.
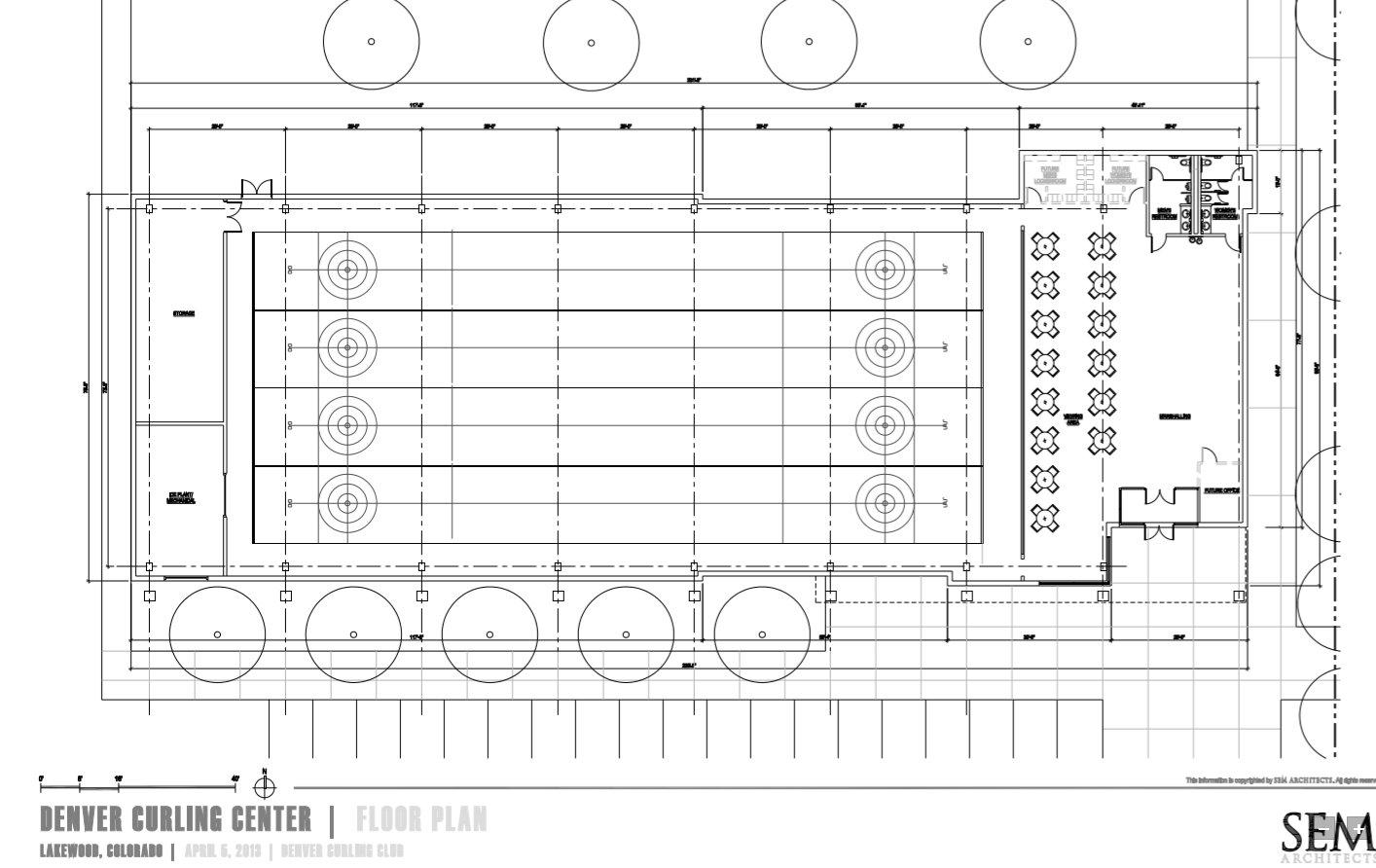
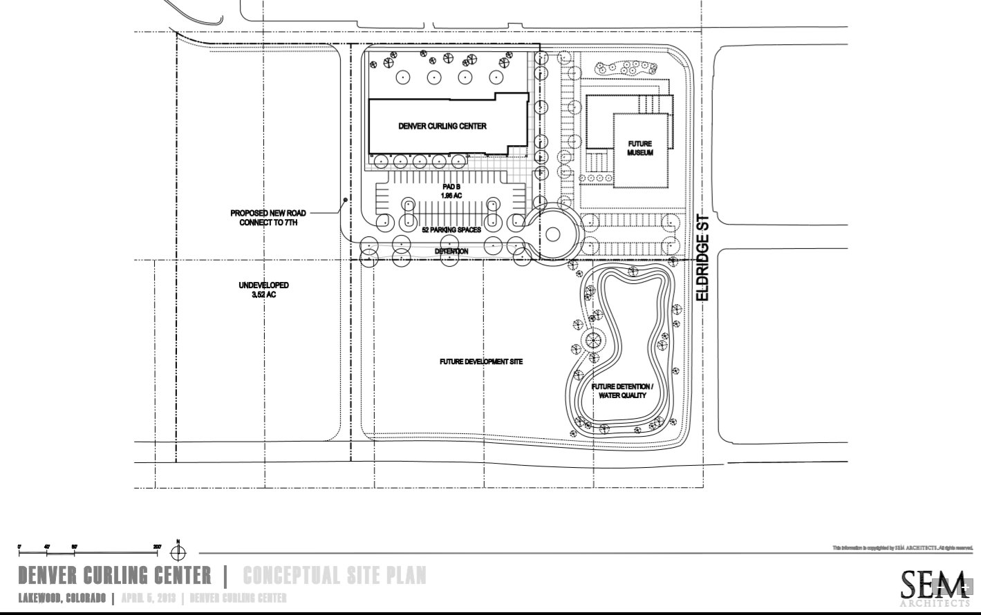
Building Concept:Over the last several months, the Building Committee has been meeting with SEM Architects and CalCon Constructors to design and develop the plans to construct a facility that will serve our needs and our funding capabilities. The initial building concept has been revised to reflect 4 sheets of curling ice containing approximately 18,200 sq. ft., viewing room, restrooms and future build out of locker rooms, accessory kitchen/refreshment area and office and 51 parking spaces. Below is the revised building rendering of the southern exposure and preliminary floor plan.
Building Conceptual Rendering!


Floor PlanSite Plan
Marketing: Marketing packet has been finalized and available to be submitted to foundations and corporations that may support our effort. If you have a company or corporation you would like us to contact for contributions or sponsorship, please send the information to This email address is being protected from spambots. You need JavaScript enabled to view it.